지블 앱에서 더 편리하게
공고를 놓치지 않도록 알림을 켜보세요
알림켜기
문의할 시 안심번호가 상담사에게 전달되며,
이후 상담 및 계약은 상담사/대행사와 직접 진행됩니다.
1 / 6
전체보기
아파트
즉시 계약 가능빌리브 루센트
AI 핵심 요약
beta
AI가 자동 생성한 내용으로 정확하지 않을 수 있어요
혜택

축하금 50만원

분석자료 제공
가전

무료
발코니 확장

무료
청약 통장

불필요
지원 자격

없음
위 내용은 일부 한정 세대에만 적용될 수 있으며, 지블이 수집한 분양 조건을 바탕으로 안내드린 사항이에요. 상담 및 계약 과정에서 꼭 다시 한 번 확인해주세요.
주변 아파트 실거래가
주변 분양권 실거래가
주변 교통
주변 학교
초등학교
대구옥산초등학교 (공립)
514m, 도보 8분
대구종로초등학교 (공립)
667m, 도보 10분
대구수창초등학교 (공립)
984m, 도보 15분
대구칠성초등학교 (공립)
1.0km, 도보 16분
대구달산초등학교 (공립)
1.4km, 도보 22분
중학교
경명여자중학교 (사립)
533m, 도보 8분
성명여자중학교 (사립)
1.3km, 도보 19분
침산중학교 (공립)
1.5km, 도보 23분
계성중학교 (사립)
1.6km, 도보 24분
경일중학교 (공립)
1.7km, 도보 25분
고등학교
칠성고등학교 (공립)
469m, 도보 7분
경명여자고등학교 (사립)
530m, 도보 8분
신명고등학교 (사립)
1.3km, 도보 19분
경북대학교사범대학부설고등학교 (국립)
1.7km, 도보 26분
대구공업고등학교 (공립)
1.8km, 도보 28분
유치원
혜송유치원 (사립(사인))
518m, 도보 8분
좋은유치원 (사립(사인))
616m, 도보 9분
예원유치원 (사립(사인))
617m, 도보 9분
대구종로초등학교병설유치원 (공립(병설))
680m, 도보 10분
대구수창초등학교병설유치원 (공립(병설))
1.0km, 도보 16분
어린이집
낙동강물사랑어린이집 (직장)
103m, 도보 2분
자이더스타어린이집 (민간)
161m, 도보 2분
EA영재어린이집 (가정)
275m, 도보 4분
힐스테이트어린이집 (국공립)
303m, 도보 5분
삼성어린이집 (가정)
361m, 도보 5분
분양 가치 종합 분석
한정수량! 무료8페이지 분량의 리포트
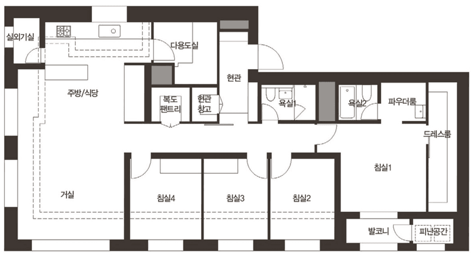
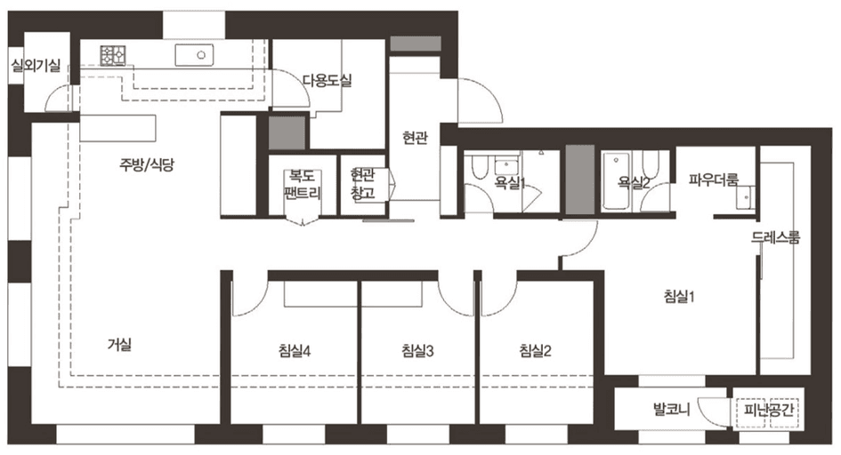
를 카톡으로 보내드려요단지 정보
주소













