지블 앱에서 더 편리하게
공고를 놓치지 않도록 알림을 켜보세요
알림켜기
1 / 1
전체보기
마감아파트기타
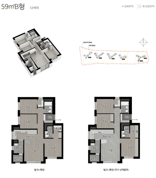
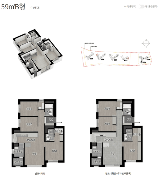
양주역 푸르지오 센터파크
경기 양주시 남방동
분양가 3.4억 ~
1,172세대
AI 핵심 요약
beta
AI가 자동 생성한 내용으로 정확하지 않을 수 있어요
#양주역세권 #양주역 #1172세대 #푸르지오
✅ 좋아요
- 대형 단지: 1,172세대 대규모 아파트 단지
- 역세권 입지: 1호선 양주역 도보 10분 이내 거리
- 브랜드 가치: 대우건설 푸르지오 브랜드 시공
- 초품아 예정: 단지 앞 유양초등학교 이전 개교 예정
- 쾌적한 환경: 대규모 근린공원 조성 예정
🙂 아쉬워요
- 서울 접근 시간: 1호선 이용 시 서울 도심까지 1시간 20분 소요
- 중고교 부족: 단지 내 중고교 신설 계획 없음
- 상대적 높은 분양가: 84㎡ 최고가 5.3억으로 주변 시세 대비 높음
주변 아파트 실거래가
주변 분양권 실거래가
대중교통 경로
최소 시간
요금 1,950원
회사까지 45분 걸려요
5분
15분
12분
10분
도보
지하철 2호선
강남역 ~ 선릉역 (5개 역) · 환승 3분
버스 360
선릉역 ~ 삼성역 (4개 역)
도보
장소를 추가하고
대중교통 경로를 확인해보세요!
주변 학교
주변 편의시설
일정
모집공고
10/18(금)
특별공급
10/28(월) 09:00 ~ 17:30
모집 정보
공급
아파트, 1172세대 공급
단지 정보
총세대수
1,172세대
주소
경기도 양주시 남방동 600번지 (양주역세권 도시개발사업 지구단위계획 내 공동5(a1) 블록)





