지블 앱에서 더 편리하게
공고를 놓치지 않도록 알림을 켜보세요
알림켜기
1 / 1
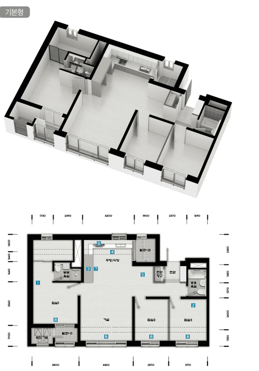
전체보기
시흥장현 A3블록 공공분양주택
경기 시흥시
분양가 3.3억 ~
534세대
AI 핵심 요약
beta
AI가 자동 생성한 내용으로 정확하지 않을 수 있어요
주변 아파트 실거래가
대중교통 경로
최소 시간
요금 1,950원
회사까지 45분 걸려요
5분
15분
12분
10분
도보
지하철 2호선
강남역 ~ 선릉역 (5개 역) · 환승 3분
버스 360
선릉역 ~ 삼성역 (4개 역)
도보
장소를 추가하고
대중교통 경로를 확인해보세요!
주변 학교
초등학교
진말초등학교 (공립)
529m, 도보 8분
장곡초등학교 (공립)
909m, 도보 14분
시흥장현초등학교 (공립)
998m, 도보 15분
한여울초등학교 (공립)
1.9km, 도보 28분
중학교
장곡중학교 (공립)
437m, 도보 7분
시흥가온중학교 (공립)
506m, 도보 8분
응곡중학교 (공립)
777m, 도보 12분
고등학교
장곡고등학교 (공립)
810m, 도보 12분
시흥능곡고등학교 (공립)
2.0km, 도보 30분
유치원
시흥가온초등학교병설유치원 (공립(병설))
489m, 도보 7분
진말초등학교병설유치원 (공립(병설))
496m, 도보 7분
빛가람유치원 (공립(단설))
504m, 도보 8분
시흥가온유치원 (공립(단설))
682m, 도보 10분
세종유치원 (사립(사인))
682m, 도보 10분
어린이집
시립장현데시앙어린이집 (국공립)
0m, 도보 0분
시흥경찰서어린이집 (직장)
175m, 도보 3분
한내들아이어린이집 (가정)
201m, 도보 3분
시립장현한내들어린이집 (국공립)
201m, 도보 3분
시립장곡어울림어린이집 (국공립)
204m, 도보 3분
일정
모집공고
8/31(화)
일반 1순위
9/14(화) 09:00 ~ 17:30
모집 정보
공급
단지 정보
총세대수
주소










